Destro Center

 

Edificio de nueva construcción (2021) situado en el exclusivo Parque Tecnológico de Paterna (Valencia) donde se ubican la mayor parte de empresas Tecnológicas de Valencia, con excelentes comunicaciones y todo tipo de servicios.

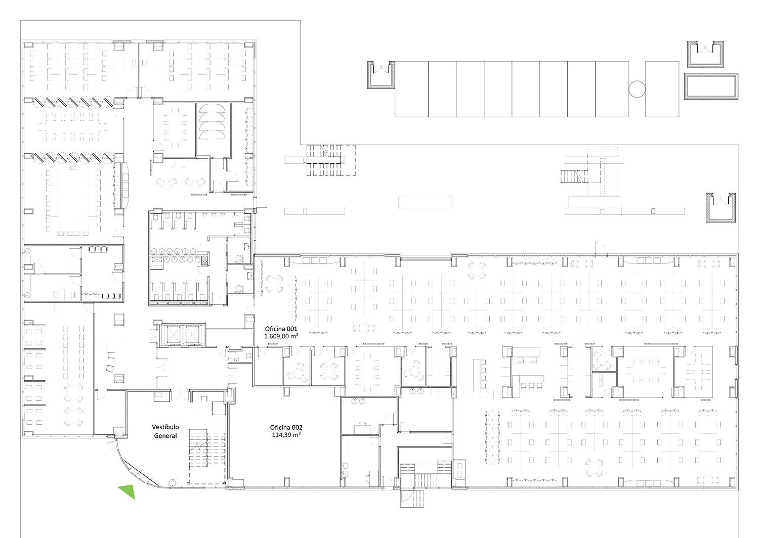
El edificio se compone de Planta Baja y dos plantas altas, así como un aparcamiento en el sótano. La superficie de cada planta es de 1.696, pudiéndose alquilar por plantas enteras o bien por módulos de 627 m2 ó 1.069 m2.

Categoría:

Destro Center

Parque Tecnológico Paterna

DESCRIPCIÓN

Edificio de nueva construcción (2021), situado en el exclusivo parque Tecnológico de Paterna (Valencia), donde se ubican la mayor parte de empresas tecnológicas de Valencia, junto a servicios varios como cafeterías-restaurantes, gimnasio, banco, papelería…Bien comunicado mediante transporte público, como es el “Autobús lanzadera” que realiza el trayecto directo desde Valencia al Parque en aproximadamente 25 mins., con paradas varias en principales vías de Valencia, y del Parque, y muy cercanas al Edificio.

Se compone de Planta Baja y dos plantas altas, y sótano. La superficie de cada planta es de 1.696 m2, pudiéndose alquilar por plantas enteras o bien por módulos de 627 m2 ó 1.069 m2.

Calificación Energética A

CARACTERÍSTICAS

EDIFICIO

  • Fachada ventilada.
  • Aislamiento térmico y acústico.
  • Aseo común con acceso para minusválidos.
  • Cuadros eléctricos independientes por planta.
  • Parking privado en sótano.
  • Conserjería.
  • Control cámaras y alarmas conectadas a empresa de seguridad.
  • Acceso a fibra óptica por diferentes compañías.
  • Instalación sistema contraincendios (BIES, extintores, detectores…).

OFICINAS

  • Todas exterior, con amplios ventanales oscilobatientes.
  • Climatización independiente por módulos (frio/calor).
  • Ventilación interior.
  • Falso techo con luminaria led y suelo técnico registrable.
  • Preinstalación bandejas, tubos para canalización de puntos de enchufe, voz y datos.
  • Tomas de TV y radio.

PLANOS

Unas calidades únicas en un proyecto de gran envergadura, con las últimas prestaciones y el equipamiento idóneo para que puedas desarrollar tu trabajo con todas las facilidades.

OFICINAS

INFORMACIÓN ADICIONAL

Destro Center
Ronda de Narcís Monturiol, 8
46980 Paterna, Valencia

HORARIO AUTOBUSES LANZADERA

Ver video completo

SOLICITA INFORMACIÓN




    Información adicional

    Ciudad

    Castellón

    Operación

    Alquiler

    Metros cuadrados

    100 a 200m2, 50 a 80m2

    Valoraciones

    No hay valoraciones aún.

    Sé el primero en valorar “Destro Center”