Edificio Trade Center

 

Los Edificios Trade Center disponen de amplias oficinas y locales comerciales en alquiler, dotados de las más altas prestaciones para una perfecta gestión empresarial.

Gracias a su excelente ubicación en la zona de Nuevo Centro, se benefician de una extensa red de comunicaciones y todos los servicios al alcance.

Categoría:

Edificio Trade Center

DESCRIPCIÓN

Los Edificios Trade Center disponen de amplias oficinas y locales comerciales en alquiler, dotados de las más altas prestaciones para una perfecta gestión empresarial.

Gracias a su excelente ubicación en la zona de Nuevo Centro, se benefician de una extensa red de comunicaciones y todos los servicios al alcance.

CARACTERÍSTICAS

EDIFICIO:

  • Conserjería y vigilancia 24 h.
  • Salón de actos y sala de congresos
  • Puertas blindadas
  • Locales comerciales
  • Parking Privado y público

OFICINAS:

  • Oficinas desde 20 a 500 m2
  • Aire Acondicionado Individual
  • Puertas blindadas

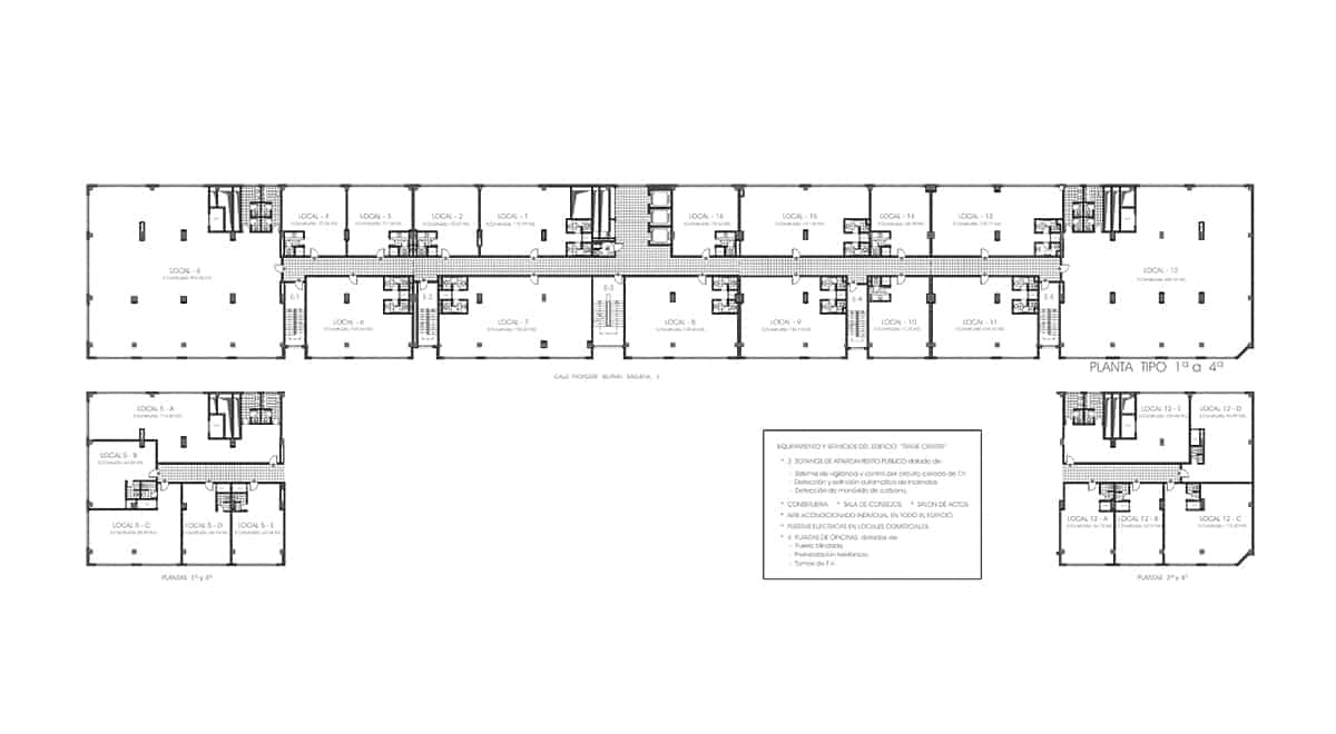
PLANOS

Las oficinas, desde más de 80 m2, están diseñadas con la mejor disposición para optimizar las zonas de trabajo. Una superficie idónea para rentabilizar al máximo el espacio y que te sientas cómodo mientras desarrollas tu proyecto.

OFICINAS

INFORMACIÓN ADICIONAL

Trade Center I. Profesor Beltrán Báguena, 4

Trade Center II . Ricardo Mico, 5

TEL. 96 349 10 11

Ver video completo

SOLICITA INFORMACIÓN




    Información adicional

    Ciudad

    Castellón

    Operación

    Alquiler

    Metros cuadrados

    100 a 200m2, 50 a 80m2

    Valoraciones

    No hay valoraciones aún.

    Sé el primero en valorar “Edificio Trade Center”